*verkauft*: Restaurant / Gastro inkl. Ausstattung zum Kauf, sehr gute Lage im Lehel



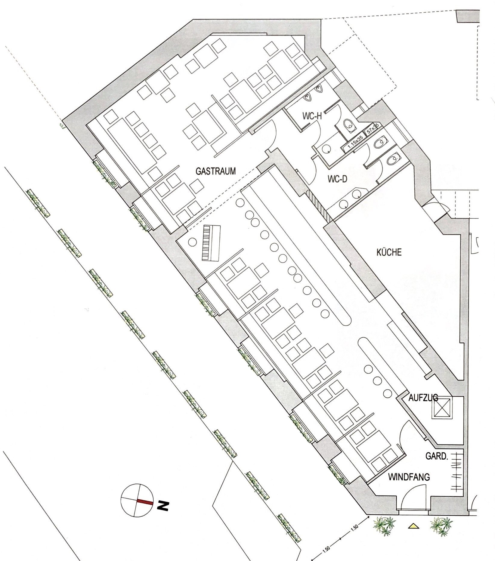
Gastraum zzgl. Außenfläche: ca. 114,61 m²
Gesamtfläche: ca. 162,98 m²
Kellerräume: 6
Toilettenräume: 2
Sonstige Räume:

Küche / Kammer

Verfügbarkeit: ab sofort
Verkauft: 6/2023
 

 



Objektbeschreibung

*Wir haben diese Immobilie bereits erfolgreich verkauft! *

 

Gastro-Immobilie in historischem Denkmal Gebäude im Lehel sucht neuen Eigentümer!

Die ideal gelegene Immobilie eignet sich bestens für Gastronomie aller Art, auch z.B. als Shisha-Bar. Ebenfalls denkbar wäre ein Umbau zur Ladenfläche.

 

Die wunderschönen Fensterbögen in Natursteingemäuer erzeugen ein ganz besonderes Ambiente. Das gut durchdachte Lichtkonzept trägt ebenfalls zu einem schönen Raumgefühl bei.

Der Gastraum ist großzügig: auf ca. 114,61m² ist Platz für ca. 70 Plätze ( je nach Bestuhlung). Der hintere Teil lässt sich z.B. für private Feiern abtrennen.

Die Genehmigung für eine Außenbestuhlung seitlich des Gebäudes war bereits von der Stadt München gegeben worden, eine Bestuhlung der Freiflächen vor dem Eingang war geplant - beides müsste beim KVR neu abgeklärt werden.

 

Das Objekt wurde als italienisches Restaurant genutzt - die komplette Einrichtung wird ablösefrei überlassen.

Dies hat den großen Vorteil zeitnah eröffnen zu können, insbesondere bei möglichen Lieferschwierigkeiten.

 

Ein großer Tresen / Weinbar trennt den Gast- vom Arbeitsbereich. Neben Zapfhähnen, hochwertiger Kaffeemaschine und hohen Regalen für Getränke befindet sich hier eine kleinerer Spülmaschine, Crushed ice und Eiswürfelbehälter, sowie diverse Edelstahl-Auszüge. Angrenzend gibt es einen kleinen Lagerraum mit Lastenaufzug in den Keller.

Die voll ausgestattete Gastronomie-Küche bietet alles für den Profi-Koch.

 

Über den Hinterhof gelangt man in 2 Schritten zum Kellereingang.

Insgesamt 6 Räume gehören dort zur Immobilie: ein Lagerraum (bisher als Weinkeller genutzt) mit angepassten Regalen, Lagerraum mit Lastenaufzug zum Gastraum sowie zur Straße, angrenzend der Kühlraum. Des Weiteren ein Personal-WC mit Dusche und zwei weitere Räume mit Fettabscheider und Bioclimatic Luftreinigungsanlage.

 

Maße sind ca. Angaben, alle Angaben wurden uns vom Eigentümer übermittelt, der Makler übernimmt für die Richtigkeit keine Gewähr.

 

 

 

 


Ausstattung

 

Parkettboden im Gastraum

großer Tresen mit Vollausstattung

Lichteffekte innen, Steckdosen an den Fenster für Außenbeleuchtung

Bestuhlung innen und Außen

Piano

Voll ausgestattete Gastroküche mit u.a. Gasherd 6 flammig, Spülmaschine, Abluftsystem etc.

Fettabscheider

Bioclimatic Luftreinigungsanlage

Lagerkeller mit Regalen

Lastenaufzug Bar zum Lagerkeller

Lastenaufzug Straße zum Keller

Weitere Gerätschaften wie: hochwertige Kaffeemaschine, Zapfsäule, Kühl- und Gefrierschränke, diverse Regale und Küchenutensilien. 

 


Energieausweis

wird nicht benötigt


Lage

Das Lokal liegt in sehr guter Lage im Lehel, nur 170m vom Isartor und dem Isarufer entfernt. Durch die nahegelegenen Hotspots wie Praterinsel, Museumsinsel und Gärtnerplatz ist reger Publikumsverkehr gegeben.
Die Parksituation ist der Lage entsprechend, eher gut, entlang der Straße kein Anwohnerparken.

Inhalte von Google Maps werden aufgrund deiner aktuellen Cookie-Einstellungen nicht angezeigt. Klicke auf die Cookie-Richtlinie (Funktionell), um den Cookie-Richtlinien von Google Maps zuzustimmen und den Inhalt anzusehen. Mehr dazu erfährst du in der Google Maps Datenschutzerklärung.

Exposé anfordern

Gerne übersenden wir Ihnen unser ausführliches Exposé mit einer detaillierten Beschreibung des Objektes samt Planunterlagen.

Hinweis: Bitte die mit * gekennzeichneten Felder ausfüllen.